Back to All Properties
SSTC
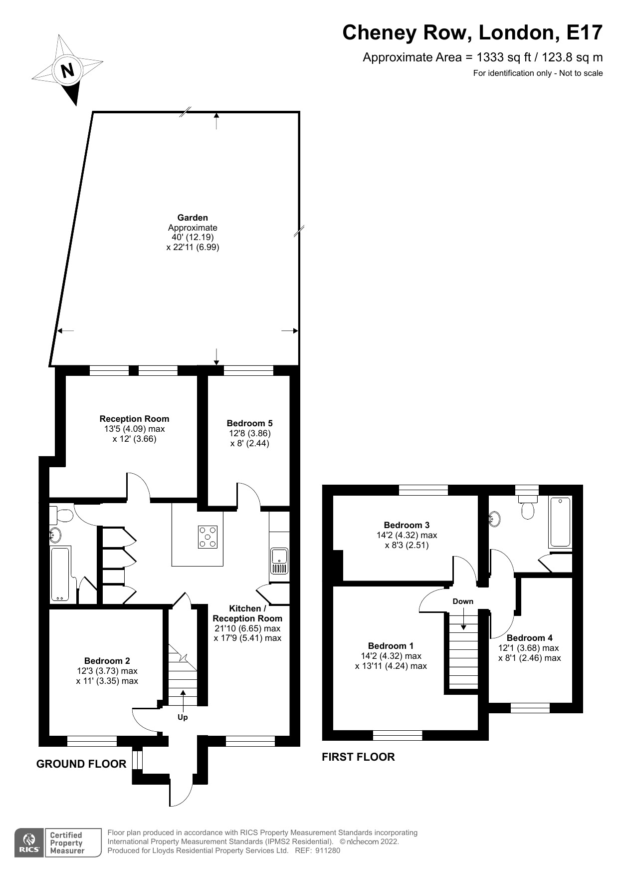
Cheney Row, Walthamstow
Cheney Row, Walthamstow, E17
5
2
1
Guide Price
£550,000

















Features
Property Info
Floor Plans
Map
EPC
Features
Five Bedrooms
Two Bathrooms
Kitchen - Diner
Generous Lounge
Drive
Good Sized Rear Garden
End Of Terrace
Beds: 5
Baths: 2
Reception: 1
Property Info
Versatile Living! This deceptively spacious end of terrace home offers five bedrooms, arranged between the ground and first floor. Step through the porched entrance and there is a generous well appointed double bedroom to the left hand side with floor to ceiling built in wardrobes. To the right you enter the stunning kitchen diner, complete with high gloss units and integrated appliances which is certainly the hub of the home! The generous main reception is flooded with natural light from the floor to ceiling sliding patio doors, with views to the good-sized rear garden complete with raised decking. Off the central kitchen is another good sized double bedroom and a fully tiled luxury bathroom complete with shower and chrome radiator. To the left of the first floor landing you have the principal bedroom with built in wardrobes and another double bedroom which looks over the rear garden. The first floor bathroom is fully tiled and again complete with shower and chrome radiator. The cosy fifth bedroom completes this fantastic home. Further benefits include laminate flooring throughout, double glazing, gas central heating (un- tested) and off street parking via the front drive. This property has an exceptionally versatile layout and may suit that larger family who may benefit the ground floor bedrooms with a bathroom easily accessible. A stones throw from the ever popular Cheyney Row park and conveniently located for Blackhorse Road tube, not to mention superb road links via the A406 & M11.
The property misdescriptions act 1991. The Agent has not tested any apparatus, equipment, fixtures and fittings or services and so cannot verify that they are in working order or fit for the purpose. A Buyer is advised to obtain verification from their Solicitor or Surveyor. References to the Tenure of a Property are based on information supplied by the Seller. The Agent has not had sight of the title documents. A Buyer is advised to obtain verification from their Solicitors.
Amenties
Property Type
House
Property Style
Semi-detached
Parking
Drive
Tenure Type
Freehold
Council Tax Band
C
Floor Plans

Floor Plan 1
Map
EPC

EPC 1
LOOKING TO BUY OR SELL?
Whether you’re taking your first step onto the property ladder or planning your next move, our experienced local agents are here to help. From accurate valuations to expert negotiation, we’ll guide you through every stage of the process with confidence.
Register for Property Alerts
Stay ahead of the market! Sign up to receive instant notifications on new listings, price changes, and opportunities that match your preferences — so you never miss your perfect home.
×
×
